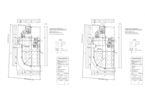
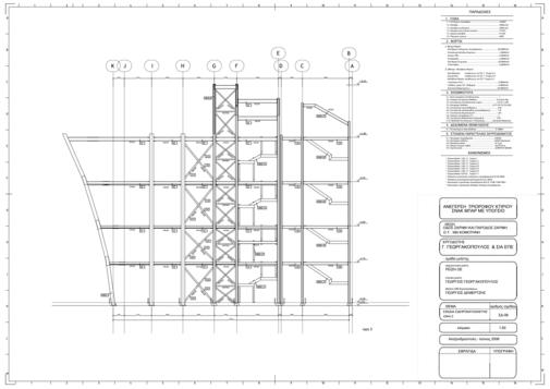
Commercial Building

Image
Description

Commercial Building

Client: Georgakopoulos S.A.
Location: Komotini, Greece
Date: 2016

Contract:
• Conceptual Design
• Structural Analysis & Design
• Seismic Analysis & Design
• Design and Detailing of Steel Connections
• 3D Cad Modelling
• General Arrangement Drawings Generation
• Assembly Drawings Generation
• Fabrication Drawings Generation
• Structural Design Reports

Technical Features:
• Steel Structures; 1100sqm
• Structural Type: Moment Resisting Frames
• Inclined Columns
• Strip Foundation
• High Seismicity Area

3D Model Views

View Drawings

Loading...