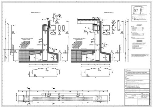
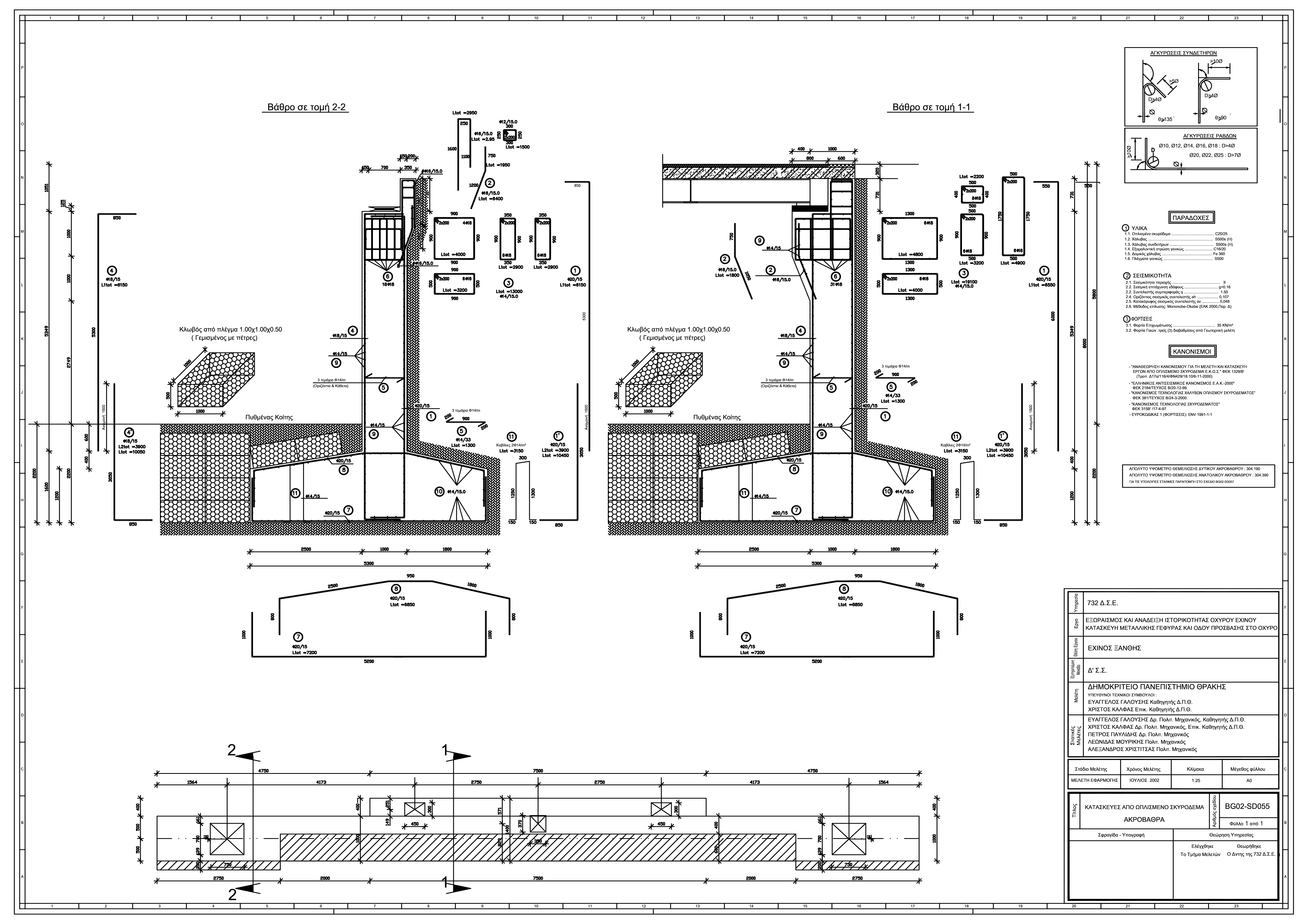
Echinos Road bridge

Image
Description

Echinos Road bridge

Client: Prefecture of Eastern Macedonia & Thrace
Location: Echinos, Xanthi, Greece
Date: 2008

Contract:
• Conceptual Design
• Structural Analysis & Design
• Seismic Analysis & Design
• Design and Detailing of Steel Connections
• 3D Cad Modelling
• General Arrangement Drawings Generation
• Assembly Drawings Generation
• Fabrication Drawings Generation
• Structural Design Reports

Technical Features:
• Steel Road Bridge
• Tied Arches Suspension Bridge (24.5 Meters Span)
• Steel – Concrete Composite Deck
• Supported by 4 Base Isolators (lead rubber bearings)
• Reinforced Concrete Abutment Walls
• Reinforced Concrete Windwalls
• Reinforced Concrete Retaining Walls
• High Seismicity Area

3D Model Views

View Drawings

Loading...